
產品類別:斗式提升機系列
產品簡介:Z型不銹鋼斗式提升機機架及料斗采用不銹鋼材質,耐酸堿腐蝕、耐250℃高溫、干凈衛生,在潮濕環境下輸送不易生銹,是食品、醫藥、化工行業等對衛生標準要求較高行業專用的提升設備。
全國統一銷售熱線:0373-268 2333

Z型不銹鋼斗式提升機材質采用304材質,安裝有自動給料機,均勻給料至料斗,垂直提升到一定高度,轉至水平輸送到料斗,出料口可定制多個。提升機主要用于粉體、顆粒、小塊狀物料的提升與輸送。Z型提升機是在封閉的殼體內,通過懸掛在鏈條上的料斗輸送物料。能水平--垂直--水平組合輸送。可以單點或多點加料,通過卸料裝置完成單點或多點卸料。全封閉、無泄露、無污染。

Z型不銹鋼斗式提升機提升干果
Z型不銹鋼斗式提升機可廣泛應用于各種需要柔和處理的環境。Z型供料,C型供料,Z—C混合型供料及多點上料,多點下料等場合。目前多用于稱重包裝機的供料,色選機的供料及復選供料,自動化生產線的立體循環上下料,全自動稱重配料系統的多點供料。我們的產品目前正常運行在以下自動化生產產業中:寵物食品業,膨化食品業,飼料行業,糖果行業,干鮮果品業,保健食品業,糧食精加工處理業,化工醫藥業,五金電料業,軍工制造業等等。

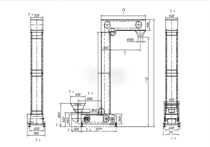
物料從進料口進入料斗隨著輸送鏈提升到頂部,繞過頂輪后向下翻轉,Z型不銹鋼斗式提升機將物料傾入接受槽內。帶傳動的斗式提升機的傳動帶一般采用橡膠帶,裝在下或上面的傳動滾筒和上下面的改向滾筒上。鏈傳動的Z型轉斗式提升機一般裝有兩條平行的傳動鏈,上或下面有一對傳動鏈輪,下或上面是一對改向鏈輪。斗式提升機一般都裝有機殼,以防止斗式提升機中粉塵飛揚。


| 型號 | ZD-160 | ZD-330 | ZD-500 | ZD-650 | ZD-250 | ZD-400 | ZD-530 | ZD-800 |
| 輸送量m3/h | 2.9~4.8 | 6.0~10.0 | 25~42.3 | 32.9~54.9 | 4.6~15.7 | 15.2~25.2 | 20~33.4 | 40.6~67.6 |

Tags:不銹鋼Z型斗式提升機